alterMATERIA

San Andreu de Llavaneres, Barcelona

Detalles de obra CLT

Año: 2020

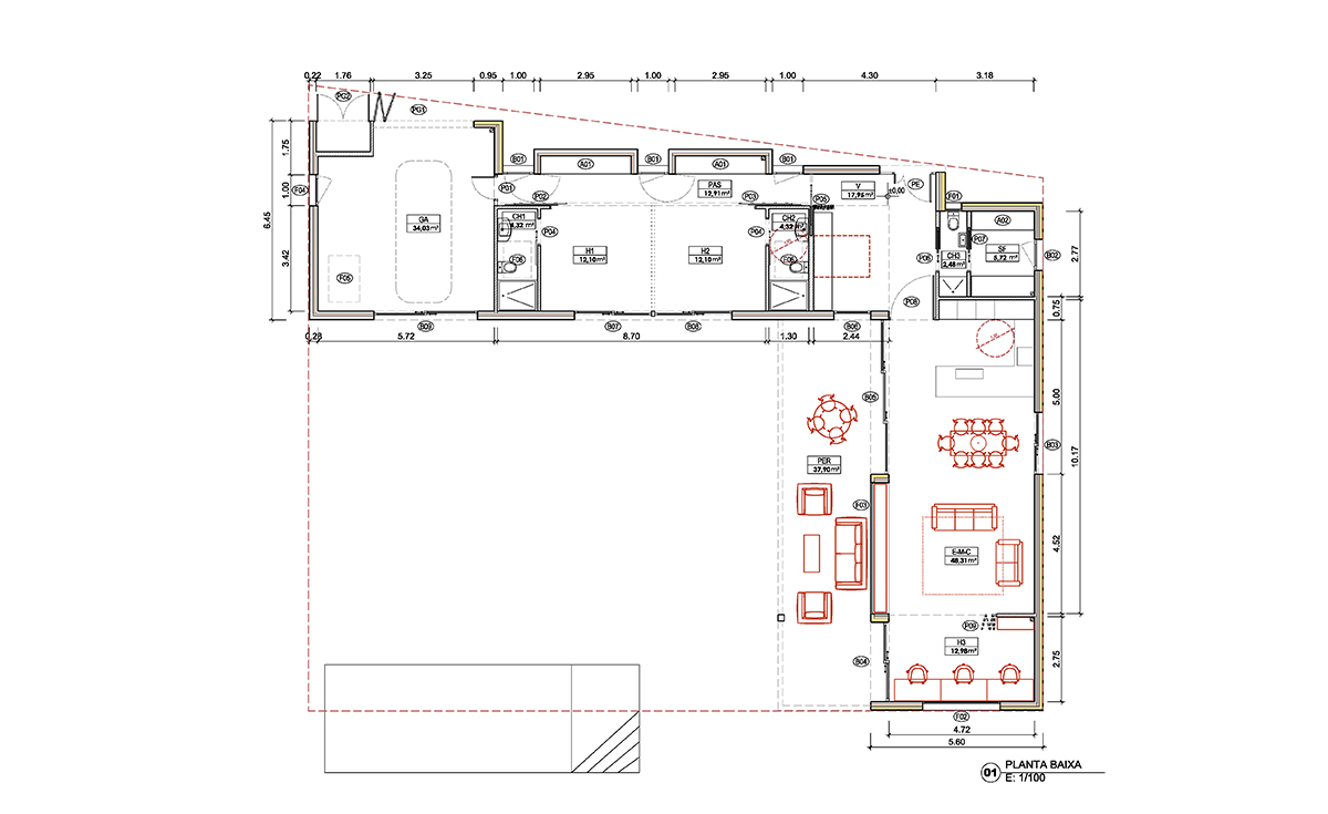
Superficie construida: 190 m2.

Duración del montaje: 7 días

Arquitecto: Jordi Safont

Vivienda unifamiliar construida en apenas una semana por un equipo de tres operarios especializados.

La cubierta plana se ha previsto considerando la posibilidad de incorporar una primera planta en caso de futura ampliación.
Los petos de cubierta, realizados íntegramente en panel CLT, funcionan como jácenas de cuelgue en los tramos donde los grandes huecos de fachada lo requieren.

A pesar de que la estructura de madera contralaminada ha quedado totalmente oculta por el mobiliario y los paneles de yeso del revestimiento, es apreciable la ausencia de vigas, mochetas y nervaduras que condicionan la sensación de confort interior.

Este proyecto demuestra que el uso de la madera en construcción no tiene por qué estar destinado a exponer su superficie. También tiene cabida en proyectos en los que se busque eficiencia energética, calidad del aire interior y limpieza de formas.

Contacto para presupuesto

DOCUMENTACIÓN NECESARIA PARA REALIZAR PRESUPUESTO

  • Planos en dwg incluyendo:
    • Plantas.
    • Alzados.
    • Al menos una sección detallando alturas interiores y capas de revestimiento.
  • Formulario cumplimentado.

QUÉ INCLUYE EL PRESUPUESTO

  • Estimación del coste de la estructura.
  • Esquema estructural de paramentos necesarios.

DE QUÉ SE PUEDE ENCARGAR ALTERMATERIA EN EL PROYECTO

  • Cálculo y despiece definitivo incluyendo justificación normativa.
  • Asistencia técnica al proyectista.
  • Suministro y montaje de la estructura y otros elementos de madera en bruto.

    Datos del solicitante





    ¿Cuál es tu perfil?


    Datos del proyecto







    Inicio previsto de la obra

    ¿En qué fase se encuentra la obra?


    Motivo por el que eliges panel de madera contralaminado (CLT)



    ¿Cómo has conocido a alterMateria?



    Mensaje


    Subir archivos

    Puedes adjuntar hasta 5 ficheros. Solo dwg, pdf, jpg o zip y menores de 2mb.